The Arkadians
Securing an Irreplaceable Asset in DHA Phase 8, Karachi
The Arkadians Karachi offers a secure, high-end residential and commercial investment. Its pricing places it squarely in the luxury investment category, with two-bedroom apartments starting near PKR 11.78 Crore. Securing a unit, whether it is an apartment in Arkadians Tower A, Tower B or a high-luxury penthouse, requires immediate engagement with an official partner to unlock the critical payment plan details and begin the booking procedure. Property Pole ensures that this complex financial manoeuvre is executed flawlessly, maximizing your eventual ROI.
The Arkadians Investment Snapshot
| Asset Type / Unit | Initial Price Range (PKR Crores) | Investment Profile | Key Financial Metric / Security & Access |
|---|---|---|---|
| 2 Bed Apartment (e.g., Tower A) | PKR 11.78 Cr | Entry-Level Investor/HNWI | Projected 30-35% pre-completion appreciation. DHA Karachi “Current Project” status (Institutional Security). |
| 3 Bed Center Apartment (e.g., Tower B) | PKR 13.78 Cr | Portfolio Diversification | Superior Inflation Hedge against currency devaluation. Located in irreplaceable, secure DHA Phase 8. |
| 4 Bed Duplex Apartment | PKR 28.82 Cr – 29.09 Cr | Ultra-Luxury Residence | Off-Plan Leverage (locks in pre-completion price). Risk Exposure: Project Delivery/Liquidity. |
| Luxury Penthouse | PKR 94.50 Cr – 98.17 Cr | Blue-Chip Asset Acquisition | High expected Real Annual Return. AKD Group development, coupled with DHA oversight. |
| Payment Schedule Details | N/A (Proprietary Details) | Securing purchase/Maximizing ROI | Investment Horizon: Medium-to-Long Term (Off-plan to Handover). Accessible only via official partner (Property Pole). |
| Overall Project/Investment | Luxury investment category (starting near PKR 11.78 Cr) | Strategic Accumulation of Capital | Value Proposition: Monopolization of prime real estate. Full-Cycle Wealth Maximization services by Property Pole. |
The Arkadians Project
The Arkadians project, developed by the Creek Developers (The AKD Group), is not merely a residential address; it is a strategic accumulation of capital.
Located at the pristine edge of the Karachi Creek in DHA Phase 8, this 43-acre development represents one of the final opportunities to secure large-scale luxury property in Karachi’s most coveted and institutionally secure neighborhood.
The Arkadians is the hedge against market volatility and capture significant pre-completion appreciation
For Overseas Pakistanis and High-Net-Worth Individuals (HNWIs) seeking to hedge against market volatility and capture significant pre-completion appreciation, the time to act is now. Property Pole, as an official and recognized real estate agency partner, offers exclusive access to the transactional details—the unreleased payment schedules, the latest unit availability, and the bespoke advisory required—to transition capital into a high-growth, protected asset.
The Arkadians + Property Pole = Maximized ROI
For its valuable clients, Property Pole has partnered with The Arkadians to ensure proprietary access to the best available units, the most current and favorable financial arrangements, and the necessary proprietary details (like the unreleased payment plans) that are unavailable through unofficial channels.
This official alignment ensures that the client receives the best deal structure and accurate, verified project information from the outset.
Payment Plan – Tower A
| Apartment Type | Total Area (Sq ft) | Rate Per Sft (PKR) | Total Cost (PKR) | Down Payment (10%) (PKR) | 22 Monthly Installments (PKR) | Possession (10%) (PKR) |
|---|---|---|---|---|---|---|
| 2 Bed Apartment | 2,946 | 40,000 | 117,840,000 | 11,784,000 | 4,285,091 | 11,784,000 |
| 3 Bed Apartment | 3,716 | 40,000 | 148,640,000 | 14,864,000 | 5,405,091 | 14,864,000 |
| 4 Bed Duplex Apartment | 5,817 | 50,000 | 290,850,000 | 29,085,000 | 10,576,364 | 29,085,000 |
| Penthouse Level 1 & 2 | 17,181 | 55,000 | 944,955,000 | 94,495,500 | 34,362,000 | 94,495,500 |
Payment Plan – Tower B
| Apartment Type | Total Area (Sq ft) | Rate Per Sft (PKR) | Total Cost (PKR) | Down Payment (10%) (PKR) | 22 Monthly Installments (PKR) | Possession (10%) (PKR) |
|---|---|---|---|---|---|---|
| 3 Bed Center Apartment | 3,445 | 40,000 | 137,800,000 | 13,780,000 | 5,010,909 | 13,780,000 |
| 3 Bed Large Apartment | 3,755 | 40,000 | 150,200,000 | 15,020,000 | 5,461,818 | 15,020,000 |
| 4 Bed Duplex Apartment | 5,763 | 50,000 | 288,150,000 | 28,815,000 | 10,478,182 | 28,815,000 |
| Penthouse Level 1 & 2 | 17,850 | 55,000 | 981,750,000 | 98,175,000 | 35,700,000 | 98,175,000 |
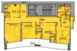
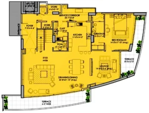
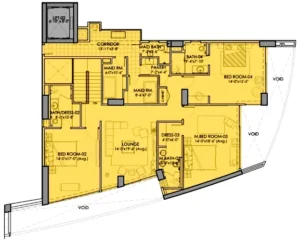
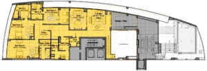
The Arkadians Floor Plans
Wall Thickness Note: ALL DIMENSION ARE EXCLUSIVE OF WALL THICKNESSES (EXTERNAL WALL THICKNESS = 6″ AND INTERNAL WALL THICKNESS = 4″).
The Strategic Advantage: Location and Scale
The value proposition of The Arkadians begins and ends with its geography. This is not just a building; it is a monopolization of prime real estate. The sheer scale of the 43-acre community in DHA Phase 8 offers an exclusivity that cannot be replicated in a mature market.
A. The Irreplaceable Address
The project’s prime location is indisputable:
- Nestled along the tranquil edge of the Karachi Creek, the development offers commanding views and overlooks the prestigious DHA Golf Course.
- This positioning in DHA Phase 8 is cited as one of Karachi’s most desirable areas, ensuring a peaceful lifestyle without sacrificing convenience.
- For the discerning investor, proximity to the DHA Golf and Country Club and the surrounding upscale neighborhood validates the high-value nature of the asset.
- The land mass dedicated to this ambitious undertaking is unparalleled in this sector, distinguishing it immediately from smaller, less secure developments.
- The ambitious scope includes 13 of the tallest, premium residential towers and six dedicated office enclaves, set to redefine the city’s skyline.
- The residential component features towers of varying heights, including some reaching 34 or 32 stories, and others at 26 stories, all offering a mix of flats, duplexes, and penthouses.
- The six office enclaves form the dedicated commercial component, known as the Business Bay, intended to serve as a hub for financial and commercial enterprises in Karachi.
B. Institutional Security and Risk Mitigation
For international investors, the security of an off-plan development is paramount.
- The Arkadians minimizes this risk through its official recognition and backing.
- DHA Karachi explicitly lists The Arkadians as a “Current Project” in Phase 8.
- This institutional stamp of approval from the Defence Housing Authority serves as a powerful assurance of the project’s viability, minimizing legal ambiguities and positioning it as a secured, government-approved investment vehicle.
- The commitment of the AKD Group, coupled with DHA’s oversight, transforms this purchase into a low-risk, high-growth asset class.
The Elevated Foundation: A 17-Foot Podium for Grandeur
The physical presence of The Arkadians is established on a centralized podium that spans 27 acres and is elevated a dramatic 17 feet above ground level in DHA Phase 8, Karachi.
This impressive elevation serves a triple function: it ensures a grand, prominent presence, acts as a stable, precision-engineered foundation for the multiple high-rise towers (including those reaching 32 stories), and maximizes the investment’s inherent value by securing panoramic views.
The entire master plan, including the design of this massive elevated structure, is intended to emulate the fluidity of the Arabian Sea waves, integrating the architecture seamlessly with the natural coastal topography.
This elevated design ensures residential and commercial spaces secure unparalleled, unobstructed views of the Karachi Creek, the DHA Golf Course, and the Arabian Sea.
The Financial Mandate: Price, Products, and Proprietary Plans
- The development is set to redefine the skyline, incorporating 13 of the tallest, premium residential towers.
- This comprehensive approach addresses the demand for both The Arkadians Tower A and Tower B (the wider tower).
- The inventory is structured to cater to the highest segment of the market, offering Flats, Duplexes, and Luxury Penthouses.
- The unit pricing reflects this exclusivity. While pricing requires direct consultation, the published ranges establish a clear financial benchmark.
The Arkadians – Granular Residential Unit Pricing (Flats and Duplexes)
| Unit Type | Tower | Price (PKR Crores) | Area Size (Marla) | Bedrooms | Bathrooms |
|---|---|---|---|---|---|
| 2 Bedroom Apartment | A | 11.78 | 13.09 | 2 | 2 |
| 3 Bedroom Center Apartment | B | 13.78 | 15.31 | 3 | 3 |
| 3 Bedroom Apartment | A | 14.86 | 16.52 | 3 | 3 |
| 3 Bedroom Large Apartment | B | 15.02 | 16.69 | 3 | 3 |
| 4 Bedroom Duplex Apartment | B | 28.82 | 25.61 | 4 | 4 |
| 4 Bedroom Duplex Apartment | A | 29.09 | 25.85 | 4 | 4 |
Securing Your Purchase: Booking and Payment Schedule
For serious investors ready to complete their booking in The Arkadians Karachi, the next crucial step is accessing the proprietary financial structuring, especially the payment plan/schedule, and the structure of down payments/quarterly installments tied to construction milestones.
As the official partner, Property Pole maintains exclusive, real-time access to the most recent schedules. You cannot finalize the best terms for your investment without engaging us to navigate this critical financial gateway.
The Arkadians – Exclusive Residential Unit Pricing (Initial Investment Range)
| Unit Type | Tower Designation (Example) | Approximate Area Size (Sq ft) | Approximate Area Size (Marla) | Initial Price Range (PKR Crores) | Investment Profile |
|---|---|---|---|---|---|
| 2 Bedroom Apartment | Tower A | 3564 | 13.09 | PKR 11.78 Cr | Entry-Level Investor/HNWI |
| 3 Bedroom Center Apartment | Tower B | 4168 | 15.31 | PKR 13.78 Cr | Portfolio Diversification |
| 4 Bedroom Duplex Apartment | Tower A/B | 6972 – 7038 | 25.61 – 25.85 | PKR 28.82 Cr – 29.09 Cr | Ultra-Luxury Residence |
| Luxury Penthouse | Select Towers | N/A | N/A | PKR 94.50 Cr – 98.17 Cr | Blue-Chip Asset Acquisition |
The Investor’s Calculus: Maximizing Capital Appreciation
HNWIs and Overseas Pakistanis must treat the acquisition of a unit at The Arkadians as a highly calculated financial maneuver. The goal is to maximize the ROI, which is achieved by purchasing during the current “Work In Progress” phase.
A. The Off-Plan Leverage
Acquiring an off-plan asset in a prime location is the definitive strategy for capturing appreciation. Development experts predict that due to significant surrounding infrastructure projects—including the swift completion of the Malir Expressway—real estate rates in sectors like DHA Phase 8 are expected to increase by a minimum of 30-35% before final completion.
By committing capital now, the investor locks in a pre-completion price, leveraging the subsequent development cycle to generate substantial, verifiable capital gains, guaranteeing maximum yield when the asset is eventually listed arkadians karachi for sale.
B. Strategic Hedging Against Economic Volatility
In an environment where currency devaluation and inflation are constant concerns, holding high-value, fixed assets like those in The Arkadians acts as a powerful financial safeguard. Unlike local cash reserves, which are subject to erosion, a blue-chip property investment in DHA Karachi serves as a superior inflation hedge, preserving wealth while simultaneously benefiting from systemic infrastructural growth. This is a move of protective growth.
Comparative Investment Analysis: Arkadians vs. Passive Assets
| Investment Vehicle | Primary Risk Exposure | Expected Real Annual Return | Role in HNW Portfolio | Investment Horizon |
|---|---|---|---|---|
| The Arkadians Luxury Real Estate | Project Delivery/Liquidity | High (Projected 30-35% Capital Gains) | Strategic Growth/Inflation Hedge | Medium-to-Long Term (Off-plan to Handover) |
| Pakistan Fixed Deposits (PKR) | Inflation Erosion/Currency Devaluation | Negative Real Return (Post-Inflation) | Short-Term Liquidity Buffer | Short Term |
| International Equity/Bonds | Volatility/Tax Implications | Variable | Global Diversification | Medium-to-Long Term |
The investment is fundamentally sound: it is protected by DHA oversight, strategically timed to capture market expansion, and inherently scarce due to its scale and location adjacent to the Creek.
The Full Lifestyle Matrix: Infrastructure, Wellness, and Location Assets
The exclusivity of The Arkadians is amplified by the high standard of integrated infrastructure and comprehensive amenities maintained across DHA Phase 8. The community is meticulously planned to offer a self-sufficient ecosystem for the elite resident.
A. Foundational Infrastructure and Plot Features
The DHA Phase 8 Directorate ensures high reliability across all core utilities, mitigating the infrastructure risks commonly seen in other urban developments. The following Plot Features are standard for the community, supported by the Phase-VIII Directorate office:
- Electricity: Consistent, managed supply, often through dedicated feeders in conjunction with K-Electric (KE).
- Sewerage: Integrated, modern system maintained directly by the DHA Directorate.
- Sui Gas: Reliable, piped natural gas supply network.
- Water Supply: Managed distribution ensuring continuous service to esteemed residents.
B. Business and Communication Ecosystem
The development caters directly to the modern executive through integrated, high-specification professional facilities:
- Broadband Internet Access: Designed for high-speed, contemporary connectivity standards necessary for luxury residential and commercial hubs.
- Business Center or Media Room in Building: Dedicated professional spaces, often including specialized services and coffee bars, for residents.
- Conference Room in Building: State-of-the-art facilities equipped for professional business meetings and discussions within the secure premises.
- Intercom: Essential for controlled access and seamless internal communication within the multi-story towers.
- Satellite or Cable TV Ready: Infrastructure pre-installed for immediate entertainment and communication setup.
C. On-Site Community Features and Wellness Assets
- Community Gym: Robust, 24-hour fitness center equipped with modern cardio and strength training facilities.
- Community Centre: Dedicated hub for resident engagement and organized community activities.
- Community Lawn or Garden: Private shade gardens and extensive parkland integrated into the community landscape.
- Community Swimming Pool: Large, resort-inspired outdoor swimming pools and hot tubs.
- First Aid or Medical Centre: Immediate medical support is guaranteed by the readily accessible DHA Medical Centre.
- Kids Play Area: Dedicated, secure zones for children’s recreation.
- Mosque: A Grand Jamia Mosque featuring contemporary architectural design is planned to cater to the spiritual needs of residents.
D. Healthcare, Dining, and Leisure Proximity (Location Assets)
DHA Phase 8 Location Assets (Healthcare and Leisure)
| Category | Specific Asset (Name) | Critical Investment Value |
|---|---|---|
| Nearby Hospitals and Clinics | Bayview Hospital, Western Clinic, Alkhaleej Hospital | Comprehensive local access to multi-specialty and primary care services. |
| Fitness Centers | Spartan Fitness, Pulse Fitness, Primal Fitness | Highly competitive, high-end wellness market ensures specialized training options. |
| Nearby Restaurants (Creek Walk) | Nihari Palace, The Sauce, Lemon Grill, Open Dining & Buffet Area, DOUBLE DOSE, Monarca Restaurant, My World, Charcoal, Toscano, and Food Street Stalls | Dynamic, diverse culinary hub for premium dining and social engagement. |
| Other Amenities (Parks/Retail) | Major Khalid Shaheed Park (12-acre sea-facing park), DHA Phase 8 Broadway (200-ft frontage commercial corridor) | Secure green spaces, family entertainment (Chunky Monkey Amusement Park), and high-value flagship retail access. |
The Architecture and Lifestyle: Redefining the Skyline
The project’s architectural ambition directly responds to the aspiration of high-net-worth buyers looking to invest in one of its kind Skyscraper City in Karachi. The vision is not just a collection of buildings, but a vertical community reflecting “class, finesse, and a fabric of Magnanimity”.
A. An Iconic Skyscraper Community
The project is explicitly designed to transform Karachi’s skyline with 13 of the tallest, premium residential towers. This ambitious scale aligns the project with international standards for vertical communities and skyscraper cities. These towers vary in height—reaching up to 34 or 32 stories—to maximize light and view corridors across the vast 43-acre expanse. Furthermore, a defining feature of the Arkadian Apartments experience is the inclusion of wide, 6-foot-wide continuous terraces for unobstructed, panoramic views, seamlessly extending the private living space outward.
B. World-Class Amenities and Sanctuary
The commitment by the AKD Group to deliver an elite living experience is supported by the project’s success in securing the Asia-Pacific Property Awards 2020-2021. While specific details are reserved, such international recognition confirms the developer’s adherence to global quality standards, addressing the fundamental requirements of sophisticated buyers.
- Wellness and Fitness: A state-of-the-art fitness room and recreational sport courts.
- Social and Leisure: Dedicated resident lounges, game rooms with billiards, and reservable party rooms.
- Outdoor Living: Access to a central courtyard or community garden, and resort-inspired pools and sundecks.
- Family and Convenience: Dedicated children’s playrooms, coworking spaces, and 24/7 attended lobbies.
Property Pole Exclusive Services (End-to-End Investor Support)
| Service Category | Target Investor Value | Key Deliverable | Strategic Benefit |
|---|---|---|---|
| Acquisition & Negotiation | Securing best pricing and unit location. | Exclusive access to proprietary payment schedules. | Maximize initial capital leverage. |
| Remote Legal & Documentation | Effortless, compliant remote acquisition. | Full legal assistance, secure documentation, progress monitoring. | Mitigate risk for Overseas Pakistanis. |
| Post-Completion Monetization | Guaranteed income stream upon handover. | Professional rental management and tenant placement. | Ensure consistent cash flow and asset performance. |
| Strategic Exit (For Sale) | Maximizing resale ROI. | Expert advisory for optimal Arkadians Karachi for sale pricing and timing. | Full realization of capital appreciation. |












